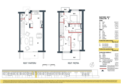
Nowy dom na sprzedaż 4 pokoje Warszawa Wawer, 96,72 m2 - nr 7b
Oferta sprzedaży od Platforma Mieszkaniowa
Warszawa, Wawer, Zerzeń, ul. Wiązana (9,2km od centrum Warszawy)

Główne cechy domu
Ważne informacje
Dom i działka
Inwestycja
Waw.Re
mazowieckie, Warszawa, Wawer, Zerzeń
Osiedle Waw.re stworzone z myślą o Tobie Kameralne osiedle składające się z 32 segmentów położone w sercu warszawskiego Wawra. Jest to idealna inwestycja dla rodzin ceniących sobie spokój, bezpieczeństwo oraz komfort. Osiedle położone w zielonej części Warszawy gwarantuje równowagę między naturą a miastem. Bliskość terenów zielonych, takich jak Mazowiecki Park Krajobrazowy i Las Sobieskiego. Spokojna i kameralna okolica, idealna do życia rodzinnego. Szybki dojazd do centrum Warszawy dzięki Trasie Siekierkowskiej, Wałowi Miedzeszyńskiemu i Obwodnicy Warszawy. Rozbudowana infrastruktura: szkoły, przedszkola, sklepy i punkty usługowe w pobliżu. Bogata oferta rekreacyjna: trasy rowerowe, szlaki piesze i obiekty sportowe. Bliskość Wisły i malowniczych terenów spacerowych nad rzeką.
Dostępne domy w tej inwestycji
| Nazwa | Rzut | Pokoje | Powierzchnia | Piętra | Cena | Status |