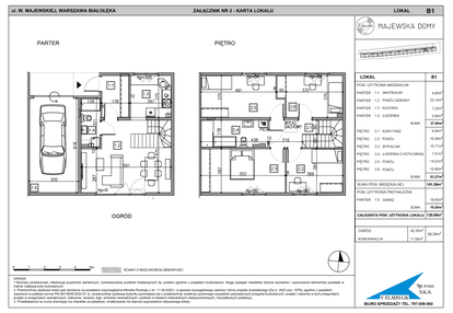
Nowy dom na sprzedaż 5 pokoi Warszawa Białołęka, 120,86 m2 - nr B1
Oferta sprzedaży od ELMIS GK Sp. z o.o. S.K.A.
Warszawa, Białołęka, Brzeziny, ul. Włady Majewskiej (11km od centrum Warszawy)

Główne cechy domu
Ważne informacje
Dom i działka
Inwestycja
Majewska Domy
mazowieckie, Warszawa, Białołęka, Brzeziny
Majewska Domy – Przemyślane i Nowoczesne Przestrzenie Mieszkalne Majewska Domy to nowa inwestycja zlokalizowana na malowniczych warszawskich Brzezinach - na Białołęce, ul. Włady Majewskiej (ok. 15 km od centrum Warszawy). Lokalizacja gwarantuje idealną komunikację, dostęp do edukacji, usług i obiektów różnego rodzaju, w tym rekreacyjnych, sklepów, szkół i przedszkoli – wszystkiego, co niezbędne do życia i funkcjonowania na co dzień. Projekt składa się z 18 nowych lokali mieszkalnych o powierzchni od 120,86 m2 do 121,10 m². Każdy lokal posiada garaż, miejsce na podjeździe, miejsce zewnętrzne i ogródki o pow. od 66 do 335 m². Inwestycja jest w trakcie budowy, odbiór lokali planowany w IV kwartale 2026 roku.
Dostępne domy w tej inwestycji
| Nazwa | Rzut | Pokoje | Powierzchnia | Piętra | Cena | Status |