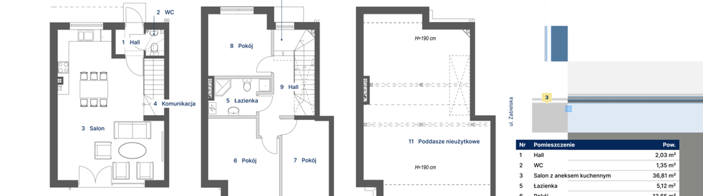
Nowy dom na sprzedaż 4 pokoje Warszawa Wawer, 91,78 m2 - nr 3
Oferta sprzedaży od Nova Chodzieska
Warszawa, Wawer, Las, ul. Zabielska (7,7km od centrum Warszawy)

Główne cechy domu
Ważne informacje
Dom i działka
Dodatkowe informacje
Udogodnienia

Klimatyzacja
Inwestycja
Nova Zabielska 2
mazowieckie, Warszawa, Wawer, Las
TWOJE MIEJSCE W WARSZAWIE - Nova Zabielska 2 W ramach inwestycji osiedla „Nova Zabielska 2” powstanie 12 segmentów w zabudowie jednorodzinnej bliźniaczej. Nowoczesna architektura, położona w cichej i zielonej okolicy, w połączeniu z ergonomicznym rozkładem mieszkań, zapewni przyszłym mieszkańcom pełen komfort. Powierzchnie segmentów wynoszą 92 m² (segmenty środkowe) oraz 94 m² (segmenty skrajne). Do każdego segmentu przynależy również poddasze nieużytkowe o powierzchni 50 m² i 52 m² (o wysokości 1,90 - 2,70 m). Każdy lokal ma oddzielne, indywidualne wejście. Do każdego lokalu przynależy prywatny ogródek (cena od 19 500 zł do 78 650) oraz dwa zewnętrzne miejsca postojowe (cena 36 000 zł), które to zostały wliczone w cenę lokalu. Co oferujemy? - 12 segmentów w zabudowie jednorodzinnej bliźniaczej - powierzchnia lokali 92 m2 lub 94 m2 wraz z poddaszem 50 m2 i 52 m2. - 2 miejsca postojowe na wyłączność do każdego mieszkania w cenie lokalu - ogrzewanie podłogowe - klimatyzator w każdym lokalu - ogródki do każdego segmentu od 30 do 133m2 w cenie lokalu - doprowadzone media miejskie: woda, prąd, gaz, światłowód - szybki dojazd do centrum Warszawy - 15 min
Dostępne domy w tej inwestycji
| Nazwa | Rzut | Pokoje | Powierzchnia | Piętra | Cena | Status |