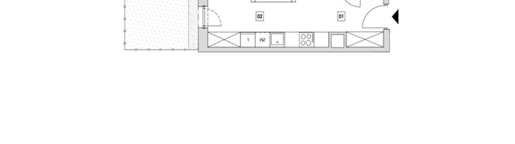
Nowe mieszkanie na sprzedaż 1 pokój Kraków Podgórze, 34,23 m2, parter - nr A1.0.04
Oferta sprzedaży od ATAL S.A.
Kraków, Podgórze, ul. Na Zakolu Wisły (3,2km od centrum Krakowa)

Główne cechy mieszkania
Ważne informacje
Mieszkanie 1 pokojowe
Dodatkowe informacje
Udogodnienia

Winda

Inteligentny dom
Inwestycja
Zakole Wisły
małopolskie, Kraków, Podgórze
Miejsce dla tych, którzy chcą więcej Zakole Wisły ATAL to propozycja dla osób, które nie uznają kompromisów — chcą korzystać z uroków miasta, ceniąc jednocześnie komfort i wygodę codzienności. Inwestycja zlokalizowana w sąsiedztwie ulicy Nowohuckiej, jednej z najważniejszych arterii Krakowa, gwarantuje bardzo dobre połączenie z każdą częścią metropolii. Zaledwie 4 kilometry dzielić będą mieszkańców od klimatycznego Kazimierza z bogatą ofertą gastronomiczną. To lokalizacja dla tych, którzy wybierają energię miasta jako swój styl życia. Przestrzeń zaprojektowana z myślą o Tobie W ramach inwestycji powstanie 134 mieszkania, od funkcjonalnych kawalerek, po przestronne pięciopokojowe apartamenty. Każde wnętrze zaprojektowano tak, by zapewnić maksymalny komfort użytkowania: przemyślane układy pomieszczeń, duże przeszklenia oraz dodatkowe strefy wypoczynkowe w postaci balkonu, tarasu lub ogródka. Na terenie osiedla zaplanowano również podziemny garaż oraz miejsca postojowe na zewnątrz inwestycji. Stylowa architektura, która przyciąga wzrok Zakole Wisły ATAL to harmonijne połączenie nowoczesnej funkcjonalności z klasyczną elegancją miejskiej zabudowy. Ponadczasowa bryła budynków uzupełniona została o starannie dopracowane detale i wysokiej jakości materiały wykończeniowe. Kameralny klimat osiedla i dbałość o wspólne przestrzenie sprawiają, że od pierwszego kroku poczujesz się tu jak u siebie. To architektura z charakterem wpisująca się w rytm współczesnego Krakowa.
Dostępne mieszkania w tej inwestycji
| Nazwa | Rzut | Pokoje | Powierzchnia | Piętro | Cena | Status |