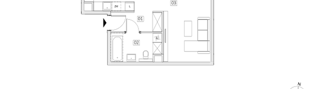
Nowe mieszkanie na sprzedaż 1 pokój Łódź Górna, 43,83 m2, 3 piętro - nr 3I.3.344
Oferta sprzedaży od ATAL S.A.
Łódź, Górna, Górniak, ul. Wólczańska (1,9km od centrum Łodzi)

Główne cechy mieszkania
Ważne informacje
Mieszkanie 1 pokojowe
Dodatkowe informacje
Przyroda

Park
Inwestycja
Ogrody Geyera Apartamenty
łódzkie, Łódź, Górna, Górniak
W każdym miejscu kryje się pewna historia. Ogrody Geyera Apartamenty opowiedzą Ci swoją. Zanurz się w postindustrialnym klimacie łódzkiej inwestycji, w której wyjątkowa przeszłość miasta splata się z jego teraźniejszością, tworząc unikalną przestrzeń do życia. Ogrody Geyera Apartamenty to prestiżowa inwestycja po zachodniej stronie najsłynniejszej łódzkiej ulicy - Piotrkowskiej. Otoczona ulicami Wólczańską, Czerwoną i Sieradzką, pozwoli mieszkańcom cieszyć się sąsiedztwem historyczno-kulturowego dziedzictwa miasta, a jednocześnie swobodnie korzystać z pełni możliwości współczesnej metropolii. Centralna lokalizacja ułatwia swobodne poruszanie się po Łodzi zarówno samochodem, jak i komunikacją miejską - w promieniu 200 metrów od inwestycji znajdują się liczne przystanki autobusowe. Projekt i wykończenie mieszkania zajmuje sporo czasu oraz pieniędzy. Korzystnym rozwiązaniem jest przekazanie tego zadania naszym Specjalistom. Ich zadaniem jest zaprojektowanie oraz wykończenie mieszkania w sposób nowoczesny i funkcjonalny. Pakiet Classic – 950 zł/mkw Pakiet Comfort – 1 150 zł/mkw Pakiet Premium – 1 650 zł/mkw
Dostępne mieszkania w tej inwestycji
| Nazwa | Rzut | Pokoje | Powierzchnia | Piętro | Cena | Status |