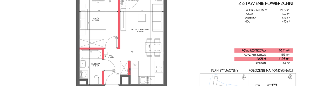
Nowe mieszkanie na sprzedaż 2 pokoje Poznań Jeżyce, 40,41 m2, 1 piętro - nr A.151
Oferta sprzedaży od Cordia Polska
Poznań, Jeżyce, Osiedle Jeżyce, ul. Jackowskiego (1,8km od centrum Poznania)

Główne cechy mieszkania
Ważne informacje
Mieszkanie 2 pokojowe
Dodatkowe informacje
Udogodnienia

Klimatyzacja

Rowerownia

Plac zabaw

Wózkarnia
Przyroda

Park
Inwestycja
Modena II
wielkopolskie, Poznań, Jeżyce, Osiedle Jeżyce
Na terenie dawnych zakładów odzieżowych "Modena" rozpoczyna się kolejny etap inwestycji. Pomiędzy ulicami Jackowskiego i Kraszewskiego powstanie drugi budynek realizowany przez dewelopera Cordia Polska. Obiekt będzie miał 7-8 kondygnacji, obejmował 199 mieszkań o układzie od 1 do 5 pokoi oraz jeden lokal usługowy. Nowy budynek swoją skalą, stylem architektonicznym i jakością wykończenia będzie przypominał ten zrealizowany w pierwszym etapie inwestycji. Elewacja zostanie utrzymana w stonowanej, jasnej kolorystyce, z detalami inspirowanymi ceglaną zabudową charakterystyczną dla tej dzielnicy. Tektonikę elewacji nadadzą balkony, loggie oraz tarasy na najwyższym piętrze, wzbogacone o różnorodne balustrady. Powierzchnia mieszkań będzie zróżnicowana i wyniesie od 27 do 116 m². W podobnej, co gotowy już budynek, eleganckiej czarno-białej stylistyce będą utrzymane również wnętrza części wspólnych budynku. W strefie wejściowej inwestycji na ścianach zewnętrznych i wewnętrznych pojawią się mozaiki inspirowane historią zakładów odzieżowych Modena, wykonane przez lokalnego artystę-rzemieślnika. Nowy budynek mieszkalny będzie wyposażony w wygodny, dwukondygnacyjny garaż podziemny mieszczący 182 miejsca parkingowe (w tym miejsca z możliwością ładowania samochodów elektrycznych), aż 200 miejsc dla rowerów, a także boksy dla jednośladów. Zostały też zaprojektowane wózkownie i komórki lokatorskie (144). Budynek zostanie objęty ochroną i monitoringiem oraz wyposażony w nowoczesny system rozpoznawania tablic rejestracyjnych mieszkańców na wjeździe do garażu. W nowej części przeprowadzona zostanie rewitalizacja drugiej części zabytkowej alei ponad 100-letnich platanów, wyznaczającej oś całej inwestycji Modena by Cordia. Powstaną także nowe nasadzenia, w tym: drzewa, krzewy, żywopłoty, byliny i trawy ozdobne, do podlewania których będzie wykorzystywany kolejny zbiornik retencyjny na wodę deszczową. Każdy lokal wyposażony w preinstalację dla klimatyzacji (dedykowane miejsca pod jednostki zewnętrzne, przygotowane przejścia przez ściany zewnętrzne, oraz instalacja zasilająca urządzenia)
Dostępne mieszkania w tej inwestycji
| Nazwa | Rzut | Pokoje | Powierzchnia | Piętro | Cena | Status |