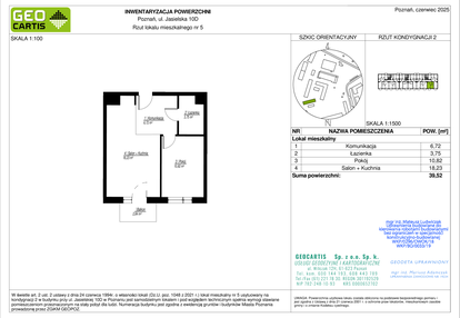
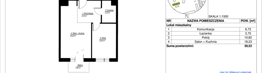
Nowe mieszkanie na sprzedaż 2 pokoje Poznań Jeżyce, 39,52 m2, 1 piętro - nr 10D/5
Oferta sprzedaży od Grupa Inwest
Poznań, Jeżyce, Podolany, ul. Jasielska (4,7km od centrum Poznania)

Główne cechy mieszkania
Ważne informacje
Mieszkanie 2 pokojowe
Dodatkowe informacje
Udogodnienia

Rowerownia

Winda

Plac zabaw
Przyroda

Jezioro
Inwestycja
Jasielska 8C etap II
wielkopolskie, Poznań, Jeżyce, Podolany
JASIELSKA 8C to nowa inwestycja mieszkaniowa realizowana przez dewelopera Grupa Inwest. Oferuje ona 374 lokali mieszkalnych 1-5 pokojowych, w tym także mieszkań dwupoziomowych z antresolami. Lokale będą wyposażone w balkony, tarasy lub ogródki. W ramach inwestycji przewidziana jest także podziemna hala garażowa z miejscami postojowymi oraz komórkami lokatorskimi. Struktura budynku i mieszkań: - 374 mieszkania, - 28-116 m2, - trzy budynki, - V pięter + mieszkania dwupoziomowe na VI piętro, - podziemna hala garażowa, - miejsca postojowe nadziemne, - komórki lokatorskie. - ogródki dla mieszkań parterowych, - tarasy dla lokali z antresolami, - winda w każdej klatce.
Dostępne mieszkania w tej inwestycji
| Nazwa | Rzut | Pokoje | Powierzchnia | Piętro | Cena | Status |