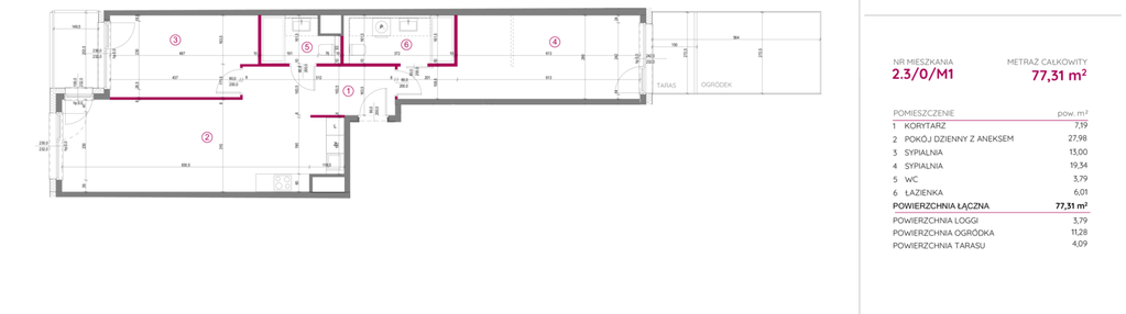
Nowe mieszkanie na sprzedaż 3 pokoje Poznań Stare Miasto, 77,31 m2, parter - nr 2.3/0/M1
Oferta sprzedaży od SIVANET Sp. z o.o.
Poznań, Stare Miasto, Piątkowo, ul. Lechicka 65 (4,1km od centrum Poznania)

Główne cechy mieszkania
Ważne informacje
Mieszkanie 3 pokojowe
Dodatkowe informacje
Udogodnienia

Winda

Plac zabaw

Usługi w budynku
Przyroda

Park

Rezerwat przyrody
Inwestycja
Lechicka 65
wielkopolskie, Poznań, Stare Miasto, Piątkowo
Inwestycja Lechicka 65 będzie się składać z dwóch budynków. Ich prosta, geometryczna bryła w połączeniu ze stonowaną kolorystyką i licznymi przeszkleniami sprawiają, że całość prezentuje się nowocześnie i elegancko. Cały teren będzie zagospodarowany zielenią. Na osiedlu zaplanowano szereg udogodnień, które poprawią komfort życia mieszkańców, a dodatkowo niektóre z nich wpłyną pozytywnie na środowisko. Dbamy o mikroklimat Na terenie inwestycji powstaną lasy kieszonkowe. Wpłyną one nie tylko na estetykę terenu, ale też poprawią mikroklimat osiedla. Budujemy komfortowe osiedle W inwestycji zaplanowano garaż podziemny na 210 stanowisk oraz 5 miejsc naziemnych dla osób z niepełnosprawnościami. Na terenie osiedla przewidziano dwa lokale usługowe. Cenimy dobre relacje Na osiedlu powstanie plac zabaw. To doskonałe miejsce do spędzania wolnego czasu na świeżym powietrzu, ale też dobre miejsce do integrowania się z sąsiadami. Zapewniamy bezpieczeństwo W trosce o dobro i spokój mieszkańców osiedle zostało ogrodzone i wyposażone w monitoring. Ograniczy to dostęp osób nieupoważnionych na teren inwestycji.
Dostępne mieszkania w tej inwestycji
| Nazwa | Rzut | Pokoje | Powierzchnia | Piętro | Cena | Status |