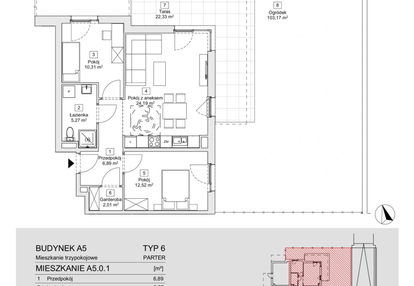
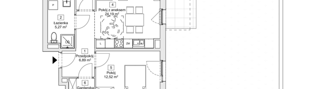
Nowe mieszkanie na sprzedaż 3 pokoje Poznań Grunwald, 61,19 m2, parter - nr A5.0.1(N)
Oferta sprzedaży od ATAL S.A.
Poznań, Grunwald, Ławica, ul. Leśnych Skrzatów (5,4km od centrum Poznania)

Główne cechy mieszkania
Ważne informacje
Mieszkanie 3 pokojowe
Dodatkowe informacje
Udogodnienia

Wózkarnia

Winda

Rowerownia
Przyroda

Park

Las

Staw
Inwestycja
Zacisze Marcelin IIIa
wielkopolskie, Poznań, Grunwald, Ławica
Kameralna i nowoczesna architektura Zacisze Marcelin IIIA to kolejny etap cenionej inwestycji mieszkaniowej w sercu Marcelina. Kameralny charakter osiedla zapewni komfort codziennego życia – w jednym budynku zaplanowano zaledwie 7–8 mieszkań. Nowoczesna architektura połączy elegancję z funkcjonalnością, a wysoka jakość projektu zagwarantuje ponadczasowy styl. Szeroka oferta mieszkań W inwestycji powstanie 90 mieszkań o powierzchni od 42,40 m² do 105,66 m². W ofercie znalazły się mieszkania 2-pokojowe, 3-pokojowe oraz 4-pokojowe. Ich układy zostały zaplanowane z myślą o wygodzie mieszkańców – znajdziemy tu dodatkowe funkcje, takie jak spiżarnie czy garderoby, które ułatwią codzienne życie. Udogodnienia dla mieszkańców Na terenie osiedla przewidziano 136 miejsc postojowych. Komfort użytkowania zapewnią windy, rowerownie i wózkownie. Lokale wyróżnią się przestronnymi tarasami i dużymi ogródkami, które pozwalają cieszyć się prywatną przestrzenią na świeżym powietrzu. Wszystkie mieszkania zostaną wyposażone w rolety zewnętrzne, które zwiększą bezpieczeństwo, ochronią wnętrza przed nadmiernym nasłonecznieniem oraz pomogą utrzymać optymalną temperaturę w pomieszczeniach przez cały rok. To rozwiązanie, które docenią zarówno rodziny, jak i osoby poszukujące dodatkowego komfortu. Dodatkowym atutem są panele fotowoltaiczne wspierające ekologię osiedla oraz system nawadniania części wspólnych, dzięki któremu zieleń wokół budynków będzie zawsze zadbana i przyjazna mieszkańcom.
Dostępne mieszkania w tej inwestycji
| Nazwa | Rzut | Pokoje | Powierzchnia | Piętro | Cena | Status |