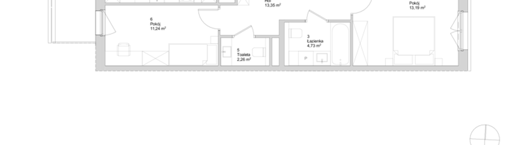
Nowe mieszkanie na sprzedaż 3 pokoje Poznań Nowe Miasto, 70,40 m2, 3 piętro - nr D.3.6
Oferta sprzedaży od ATAL S.A.
Poznań, Nowe Miasto, Warszawskie-Pomet-Maltańskie, ul. Mogileńska (4,8km od centrum Poznania)

Główne cechy mieszkania
Ważne informacje
Mieszkanie 3 pokojowe
Dodatkowe informacje
Udogodnienia

Usługi w budynku

Winda

Plac zabaw
Przyroda

Las

Jezioro
Inwestycja
ATAL Parkowa
wielkopolskie, Poznań, Nowe Miasto, Warszawskie-Pomet-Maltańskie
Twój balans na co dzień ATAL Parkowa to propozycja dla tych, którzy szukają mieszkania w zielonej części miasta. Inwestycja, która powstanie przy ul. Mogileńskiej w Poznaniu, w dzielnicy Nowego Miasta, połączy dostęp do natury z miejską wygodą. To miejsce, w którym codzienność zyskuje nową jakość – spokojną, komfortową i bliską wszystkiego, co ważne. Tam, gdzie wygoda spotyka naturę W 3 nowoczesnych budynkach, liczących od 4 do 10 kondygnacji, powstanie 257 funkcjonalnych mieszkań – od przytulnych kawalerek po przestronne czteropokojowe apartamenty. Przestronne tarasy na najwyższych kondygnacjach, a także balkony i ogródki, pozwolą cieszyć się bliskością zieleni każdego dnia. Na terenie inwestycji znajdzie się również pięć lokali usługowych – wygodne rozwiązanie na codzienne zakupy i drobne sprawy. Przestrzeń do życia i odpoczynku Na mieszkańców czekać będą nie tylko przestronne mieszkania. Inwestycja została zaprojektowana tak, aby zapewnić codzienny komfort i poczucie spokoju – z dala od miejskiego zgiełku, a jednocześnie blisko wszystkiego, co ważne. Wygoda wpisana w rytm dnia Na terenie osiedla przewidziano stojaki rowerowe oraz kameralne miejsca do odpoczynku z ławkami. Dla najmłodszych zaprojektowano plac zabaw. Przemyślana organizacja przestrzeni wspólnej sprzyja zarówno sąsiedzkim spotkaniom, jak i chwilom relaksu po intensywnym dniu. Całość dopełnią estetyczne elementy małej architektury, które podkreślą nowoczesny charakter inwestycji.
Dostępne mieszkania w tej inwestycji
| Nazwa | Rzut | Pokoje | Powierzchnia | Piętro | Cena | Status |