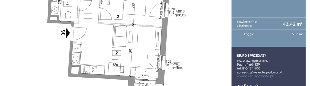
Nowe mieszkanie na sprzedaż 2 pokoje Poznań Jeżyce, 43,69 m2, 6 piętro - nr F36
Oferta sprzedaży od Colian Developer
Poznań, Jeżyce, Osiedle Jeżyce, ul. św. Wawrzyńca (1,9km od centrum Poznania)

Główne cechy mieszkania
Ważne informacje
Mieszkanie 2 pokojowe
Dodatkowe informacje
Udogodnienia

Usługi w budynku

Rowerownia

Winda

Plac zabaw
Przyroda

Park

Las
Inwestycja
Goplana budynek F
wielkopolskie, Poznań, Jeżyce, Osiedle Jeżyce
W dawnych budynkach fabryki Goplana wciąż jeszcze unosi się aromat czekolady. Może już na stałe nasyci te mury? Jednak największym atutem dawnej fabryki dziś jest jej lokalizacja – to niemal 6 hektarów w najbardziej rozpoznawalnej dzielnicy Poznania – na kultowych Jeżycach, tuż przy ulicy Kościelnej, u bram Parku Sołackiego. Goplana to kilkuetapowy projekt zakładający stworzenie nowoczesnego śródmiejskiego osiedla. W niedalekiej przyszłości powstaną tu nowe kwartały, a pomiędzy nimi place, zielone skwery i deptaki. Z okien, balkonów i tarasów ostatnich kondygnacji roztacza się piękny widok na Sołacz.
Dostępne mieszkania w tej inwestycji
| Nazwa | Rzut | Pokoje | Powierzchnia | Piętro | Cena | Status |