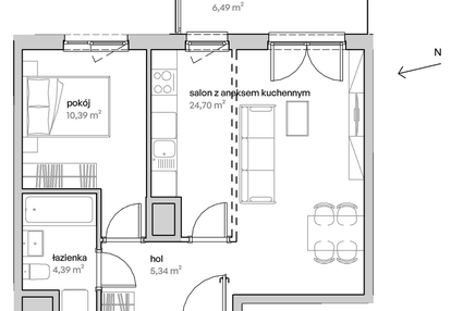
Nowe mieszkanie na sprzedaż 2 pokoje Poznań Nowe Miasto, 44,82 m2, 1 piętro - nr A.01.008
Oferta sprzedaży od Develia
Poznań, Nowe Miasto, Starołęka-Minikowo-Marlewo, ul. Unii Lubelskiej 10 (4,1km od centrum Poznania)

Główne cechy mieszkania
Ważne informacje
Mieszkanie 2 pokojowe
Dodatkowe informacje
Udogodnienia

Winda

Rowerownia
Inwestycja
Unii Lubelskiej Vita
wielkopolskie, Poznań, Nowe Miasto, Starołęka-Minikowo-Marlewo
Położona w popularnej lokalizacji na Starołęce w Poznaniu inwestycja Unii Lubelskiej Vita została zaprojektowana z myślą o nowoczesności i komforcie. Powstanie 285 mieszkań w budynku o atrakcyjnej architekturze, liczącym od 5 do 13 kondygnacji. Bogaty wybór lokali o różnych metrażach mieszczących od 1 do 4 pokoi sprawia, że oferta ta jest idealna dla rodzin, par, singli oraz osób poszukujących inwestycji pod wynajem. Dwupoziomowy garaż podziemny z niezależnym wjazdem na każdą kondygnację zapewnia 291 stanowisk postojowych, w tym 8 dostępnych dla osób z niepełnosprawnościami, a na terenie inwestycji utworzone będą także 3 naziemne miejsca parkingowe oraz stojaki dla rowerów. Na parterze przewidziano też 7 lokali usługowych, co dodatkowo podniesie komfort życia mieszkańców. Inwestycja zapewnia także strefy rekreacyjne z urządzeniami dla dzieci i dorosłych, otoczone zielenią i elementami małej architektury. Nawierzchnia utwardzona została zaprojektowana tak, aby przepuszczać wody opadowe i roztopowe, co przyczyni się do zachowania ekologicznej równowagi. Koncepcja architektoniczna Unii Lubelskiej Vita zakłada też duży nacisk na tereny zielone i ograniczenie ruchu kołowego, co sprzyjać będzie spokojnej atmosferze i aktywnemu wypoczynkowi mieszkańców. Termin zakończenia budowy osiedla zaplanowany jest na I kwartał 2026 r. Atuty • Szeroki wybór mieszkań od kawalerek po 4-pokojowe • Siedem lokali usługowych na parterze • Atrakcyjna lokalizacja na poznańskiej Starołęce • Sąsiedztwo terenów zielonych • Lokalizacja bezpośrednio przy pętli tramwajowej Szczegóły inwestycji oraz pełna oferta dostępne są na stronie internetowej: https://develia.pl/pl/
Dostępne mieszkania w tej inwestycji
| Nazwa | Rzut | Pokoje | Powierzchnia | Piętro | Cena | Status |