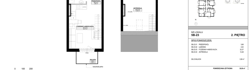
Nowe mieszkanie na sprzedaż 2 pokoje Szczecin Północ, 44,37 m2, 2 piętro - nr 5B-23
Oferta sprzedaży od Ronson Development Sp. z o.o.
Szczecin, Północ, Stołczyn, ul. Modelarska 3 (7,4km od centrum Szczecina)

Główne cechy mieszkania
Ważne informacje
Mieszkanie 2 pokojowe
Dodatkowe informacje
Udogodnienia

Boisko

Plac zabaw

Sauna
Przyroda

Las

Park
Inwestycja
Nowa Północ etap 2A
zachodniopomorskie, Szczecin, Północ, Stołczyn
Szczecin Północ to rozwijająca się dzielnica, doskonale skomunikowana z centrum miasta. Tworzą się tu nowe centra handlowe, przedszkola, żłobki oraz wiele punktów usługowych. To właśnie tutaj powstaje nowe osiedle, o kameralnej zabudowie, zupełnie inne od wszystkich. Pełne zieleni i eko rozwiązań. Tutaj odpoczniesz w ciszy i spokoju. Znajdziesz też miejsce do uprawiania sportu i odpoczynku. Na terenie osiedla zaplanowano dwa place zabaw, boisko, siłownię plenerową oraz strefę rekreacyjną. Rodziny z dziećmi lub te planujące potomstwo na pewno zainteresuje informacja o bliskości placówek edukacyjnych. Przedszkole i żłobek znajdują się bowiem tylko minutę drogi stąd! Galerie handlową, aptekę i bibliotekę masz w zasięgu zaledwie 2 minut.
Dostępne mieszkania w tej inwestycji
| Nazwa | Rzut | Pokoje | Powierzchnia | Piętro | Cena | Status |