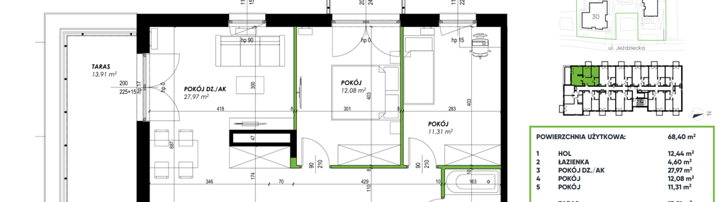
Nowe mieszkanie na sprzedaż 3 pokoje Warszawa Wesoła, 68,40 m2, 3 piętro - nr B 66
Oferta sprzedaży od Greenwood
RezerwacjaWarszawa, Wesoła, Stara Miłosna, ul. Jeździecka 26 (15,3km od centrum Warszawy)

Główne cechy mieszkania
Ważne informacje
Mieszkanie 3 pokojowe
Dodatkowe informacje
Udogodnienia

Plac zabaw

Winda
Przyroda

Park
Inwestycja
Dostępne mieszkania w tej inwestycji
| Nazwa | Rzut | Pokoje | Powierzchnia | Piętro | Cena | Status |