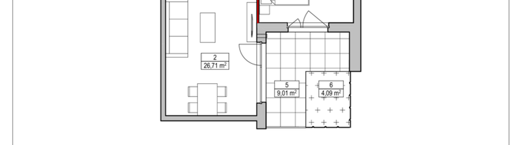
Nowe mieszkanie na sprzedaż 2 pokoje Warszawa Targówek, 51,35 m2, parter - nr D1.2.0.2
Oferta sprzedaży od ATAL S.A.
Warszawa, Targówek, Targówek Mieszkaniowy, ul. Płosa 8 (6,3km od centrum Warszawy)

Główne cechy mieszkania
Ważne informacje
Mieszkanie 2 pokojowe
Dodatkowe informacje
Udogodnienia

Plac zabaw

Patio / Dziedziniec
Inwestycja
Nowy Targówek VI
mazowieckie, Warszawa, Targówek, Targówek Mieszkaniowy
Nowoczesna przestrzeń do życia, pracy i odpoczynku. Nowy Targówek VI łączy w sobie uroki miejskiego życia ze spokojem terenów zielonych, zapewniając mieszkańcom codzienność bez wyrzeczeń. Inwestycja znajdzie się na północny-wschód od centrum Warszawy, stanowiąc ostatni etap kompleksu Nowy Targówek. Szósty etap obejmie dwa budynki. Będą one korespondować z poprzednimi etapami inwestycji od strony południowej, zapewniając spójną przestrzeń pod względem architektonicznym. Elewacje budynków zdominują biele i beże, przełamane ozdobnym tynkiem imitującym drewno oraz kamiennymi płytami w części parterowej. Do każdego mieszkania w zależności od kondygnacji przynależeć będzie balkon, taras lub urokliwy ogródek na parterze. Atrakcyjnie zaaranżowane zielone części wspólne zachęcą mieszkańców do spędzania czasu na zewnątrz. Dla dzieci z kolei przewidziano nowoczesny plac zabaw. Będzie to dobrze skomunikowane, ale jednocześnie spokojne osiedle osadzone w sąsiedztwie terenów zielonych oraz rozbudowanej infrastruktury. Mieszkańcy na wyciągnięcie ręki uzyskają dostęp do licznych punktów usługowych, przystanków (w tym II linii metra) oraz terenów rekreacyjnych. W okolicy znajdują się także piekarnie, kluby fitness, galerie handlowe, kino a także teatr. Dzielnica bogata jest także w parki i lasy, a na jej terenie zlokalizowanych jest około 13 kilometrów ścieżek rowerowych. Nowy Targówek VI to wymarzone miejsce do życia dla osób, które cenią sobie spokój w cieniu wielkiego miasta. To doskonała propozycja dla osób, które poszukują komfortowej przestrzeni do mieszkania w miejscu, które gwarantuje wygodne i miejskie życie. Projekt i wykończenie mieszkania zajmuje sporo czasu oraz pieniędzy. Korzystnym rozwiązaniem jest przekazanie tego zadania naszym Specjalistom. Ich zadaniem jest zaprojektowanie oraz wykończenie mieszkania w sposób nowoczesny i funkcjonalny. Pakiet Classic – 950 zł/mkw Pakiet Comfort – 1 150 zł/mkw Pakiet Premium – 1 650 zł/mkw
Dostępne mieszkania w tej inwestycji
| Nazwa | Rzut | Pokoje | Powierzchnia | Piętro | Cena | Status |