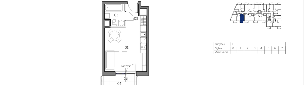
Nowe mieszkanie na sprzedaż 1 pokój Warszawa Praga-Południe, 25,18 m2, 4 piętro - nr I0451
Oferta sprzedaży od Skanska Residential Development Poland Sp. z o.o.
Warszawa, Praga-Południe, Gocław, ul. Precyzyjna 4,6 (6,6km od centrum Warszawy)

Główne cechy mieszkania
Ważne informacje
Mieszkanie 1 pokojowe
Dodatkowe informacje
Udogodnienia

Inteligentny dom

Plac zabaw

Winda

Boisko
Inwestycja
Park Skandynawia V
mazowieckie, Warszawa, Praga-Południe, Gocław
Park Skandynawia V – Nowy etap Największe atuty osiedla: • Bogata infrastruktura miejska • Dogodna komunikacja - szybki dojazd do centrum • Funkcjonalne rozkłady pomieszczeń • Duży wybór mieszkań 2-pokojowych • Solidna jakość i ekologiczne rozwiązania • Zielone dziedzińce z miejscami rekreacji i wypoczynku Termin oddania: 1 kw. 2026 Park Skandynawia V to ostatni etap cieszącego się niesłabnącym zainteresowaniem osiedla Skanska. Właśnie tu znajdziesz to, co jest kwintesencją szwedzkiego stylu życia: ekologiczne rozwiązania, solidną jakość i funkcjonalnie zorganizowaną przestrzeń. Dogodna lokalizacja w sercu Gocławia Park Skandynawia to nowoczesne, tętniące życiem osiedle zlokalizowane na Pradze Południe. Dwa nowe, siedmiopiętrowe budynki, stanowiące piąty i ostatni etap inwestycji, powstają przy ulicy Precyzyjnej. Lokalizacja to niewątpliwy atut inwestycji: • Bogata infrastruktura - centra handlowe, szkoły, urzędy, siłownie, restauracje • Trasy przelotowe i dogodna komunikacja miejska – szybki dojazd do centrum • Planowana budowa stacji metra w pobliżu osiedla w perspektywie kilku lat • Zielone tereny rekreacyjne w okolicy - Park nad Balatonem i rezerwat Olszynka Grochowska Jakość i komfort mieszkania • Zróżnicowane metraże od 25 do 124m², wysokość mieszkań ok. 2,7-2,8m • Starannie zaprojektowane układy pomieszczeń, w wielu mieszkaniach garderoby • Widne, dobrze doświetlone wnętrza • Wygodne balkony i tarasy, przestronne ogródki na parterze • Staranne wykończenie budynków, spójna, jasna skandynawska kolorystyka • Dwukondygnacyjny garaż, komórki, boksy rowerowe, stojaki rowerowe • Już działająca infrastruktura na terenie osiedla: sklepy i lokale usługowe • Projekt renomowanej pracowni nsMoonStudio Rekreacja i zieleń Dokładamy starań, aby mieszkańcy odnaleźli swoją oazę w środku miasta. Dziedzińce pomiędzy budynkami zostały zagospodarowane starannie dobranymi gatunkami roślin, powstały małe formy architektoniczne oraz budki dla ptaków i domki dla pożytecznych owadów. Mieszkańcy mogą korzystać z funkcjonalnych miejsc wypoczynku i rekreacji, na terenie osiedla znajdują się leżaki i ławeczki, miniboisko do koszykówki, siłownia zewnętrzna i stół pingpongowy. W nowym etapie zaplanowane zostały stoliki szachowe oraz plac zabaw dla najmłodszych. Park Skandynawia został doceniony przez mieszkańców: otrzymał pierwsze miejsce w konkursie na najbardziej zielone osiedle stolicy organizowanym przez Polski Związek Firm Deweloperskich. Dbamy o środowisko W projekcie wykorzystano energooszczędne rozwiązania, takie jak: panele fotowoltaiczne na dachach zasilające wybrane mieszkania, system Smart Home Appartme, oświetlenie LED oraz czujniki ruchu. Blisko 100% odpadów budowlanych poddamy recyklingowi. Certyfikat jakości BREEAM Park Skandynawia, jak wszystkie osiedla Skanska, powstaje w zgodzie z zasadami zrównoważonego budownictwa oraz w sposób, który pozwala na ekonomiczne, komfortowe i odpowiedzialne mieszkanie. Planujemy certyfikację ostatniego etapu osiedla na poziomie „very good”. Gwarancja bezpiecznego zakupu • Ponad 135-letnia tradycja grupy Skanska • Własne finansowanie inwestycji • Generalny wykonawca Skanska S.A. • Notarialna gwarancja stałej ceny • 5 lat rękojmi • Deweloperski Fundusz Gwarancyjny • Wpłaty na rachunek powierniczy • Członek Polskiego Związku Firm Deweloperskich • Bezpieczna lokata kapitału
Dostępne mieszkania w tej inwestycji
| Nazwa | Rzut | Pokoje | Powierzchnia | Piętro | Cena | Status |