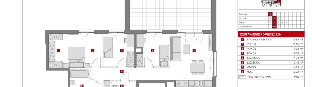
Nowe mieszkanie na sprzedaż 4 pokoje Warszawa Bemowo, 74,17 m2, 1 piętro - nr B.46
Oferta sprzedaży od Dom Development S.A.
Warszawa, Bemowo, Chrzanów, ul. Szeligowska (8,9km od centrum Warszawy)

Główne cechy mieszkania
Ważne informacje
Mieszkanie 4 pokojowe
Dodatkowe informacje
Udogodnienia

Usługi w budynku

Plac zabaw

Winda
Przyroda

Park
Inwestycja
Dzielnica Mieszkaniowa Metro Zachód - etap 8.2
mazowieckie, Warszawa, Bemowo, Chrzanów
METRO ZACHÓD - DZIELNICA Z CHARAKTEREM Dzielnica Mieszkaniowa Metro Zachód to doskonała propozycja dla osób żyjących w rytmie miasta, poszukujących wygody i niepowtarzalnego klimatu. W samym centrum inwestycji powstanie stacja drugiej linii metra Chrzanów, zapewniając mieszkańcom szybką i łatwą komunikację. Nowoczesna zabudowa zostanie wzbogacona o elementy artystyczne, a teren osiedla wypełnią ulice, place, sklepy, zieleń i miejsca do rekreacji. Metro Zachód to nie tylko budynki mieszkalne, ale przede wszystkim w pełni funkcjonalna przestrzeń do życia. ATUTY OTOCZENIA Dzielnica Mieszkaniowa Metro Zachód to w pełni funkcjonalna przestrzeń do życia z niezbędną infrastrukturą oraz miejscami do wypoczynku i integracji. Na terenie osiedla powstaną sklepy, restauracje i kawiarnie, a już w tej chwili można korzystać z pobliskich supermarketów (Lidl, Biedronka). W okolicy znajdują się liczne szkoły i przedszkola, a miłośnicy aktywności na świeżym powietrzu docenią bliskość terenów zielonych, takich jak Park Górczewska.
Dostępne mieszkania w tej inwestycji
| Nazwa | Rzut | Pokoje | Powierzchnia | Piętro | Cena | Status |