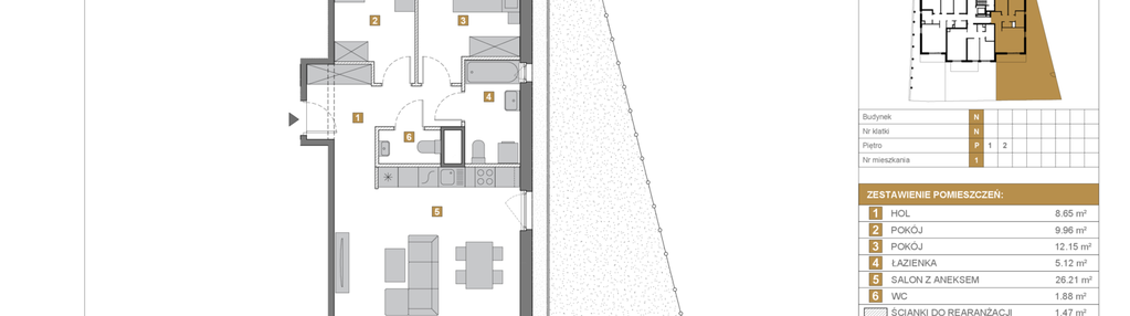
Nowe mieszkanie na sprzedaż 3 pokoje Wrocław Śródmieście, 63,97 m2, parter - nr N1
Oferta sprzedaży od Dom Development S.A.
Wrocław, Śródmieście, Bartoszowice, ul. Braci Gierymskich (5,6km od centrum Wrocławia)

Główne cechy mieszkania
Ważne informacje
Mieszkanie 3 pokojowe
Dodatkowe informacje
Udogodnienia

Inteligentny dom

Plac zabaw
Przyroda

Park

Rzeka
Inwestycja
Wille Biskupin III
dolnośląskie, Wrocław, Śródmieście, Bartoszowice
DĘBOWA ALEJA ZAPRASZA Wille Biskupin to nasza nowa inwestycja o podwyższonym standardzie położona w kameralnej i jednej z najpiękniejszych części Wrocławia – na Wielkiej Wyspie. To tu znajdują się tereny miejskiego Zoo, Parku Szczytnickiego ze słynnym Ogrodem Japońskim i wpisana na Listę Światowego Dziedzictwa UNESCO Hala Stulecia. Malowniczy krajobraz tworzą zielone brzegi Odry, liczne parki i dębowe aleje, z których najdłuższa, wzdłuż ul. Olszewskiego, sąsiaduje z nową inwestycją. Wille Biskupin idealnie wpiszą się w willowy charakter Wielkiej Wyspy pełnej niezwykłej architektury przedwojennych osiedli. PIĘKNO WIELKIEJ WYSPY Wrocławską Wielką Wyspę wyróżnia cisza i kameralność, a jednocześnie bliskość centrum i pełna miejska infrastruktura. Znakomitą komunikację gwarantują liczne linie autobusowe i tramwajowe, m.in. wzdłuż ulicy Olszewskiego oraz kilka mostów, w tym Zwierzyniecki, Szczytnicki oraz Olimpijski będący częścią Obwodnicy Śródmiejskiej (Aleja Wielkiej Wyspy). Doskonała oferta handlowo-usługowa (sklepy, oświata, kultura) zapewni wygodę codziennego funkcjonowania. Do aktywnego wypoczynku zachęcą liczne parki (pobliski Park Biskupiński i Park Szczytnicki z Ogrodem Japońskim), lasy i tereny rekreacyjne wzdłuż Odry. MODERNISTYCZNE WILLE Wille Biskupin to kameralne wille miejskie zatopione w zieleni części wspólnych z placami zabaw i prywatnych ogródków. Niewysoka, 2-piętrowa architektura nawiązuje do najlepszych wzorów modernizmu i okolicznej zabudowy. Wille Biskupin wyróżnia subtelna forma, jasne elewacje z ciekawym wzorem tynków i płyt kamiennych oraz charakterystycznym detalem, a także duże przeszklenia okien. Dla wygody mieszkańców pojawi się szereg nowoczesnych rozwiązań, w tym m.in. automatyka budynkowa czy rozbudowana infrastruktura rowerowa. RÓŻNORODNE APARTAMENTY W ramach inwestycji powstaną wielorodzinne wille miejskie z apartamentami o szerokiej gamie metraży od ok. 45 m2 do 110 m2 oraz zróżnicowanych rozkładach – od 2- i 3-pokojowych lokali po przestronne 4- i 5-pokojowe przestrzenie. Wszystkie apartamenty na piętrach posiadać będą przestronne balkony, a zlokalizowane na parterze – przydomowe ogródki. ZIELONA KARTA INWESTYCJI Zielona Karta Inwestycji to nasz wewnętrzny standard (wchodzący w skład naszej strategii ESG), gwarantujący optymalny zestaw korzyści dla mieszkańców oraz zastosowanie rozwiązań projektowych zgodnych z priorytetami zrównoważonej urbanizacji. Wille Biskupin spełniają wymogi Zielonej Karty Inwestycji z uwagi na bogaty pakiet elementów zapewniających komfort życia mieszkańców oraz wspierających ochronę środowiska.
Dostępne mieszkania w tej inwestycji
| Nazwa | Rzut | Pokoje | Powierzchnia | Piętro | Cena | Status |