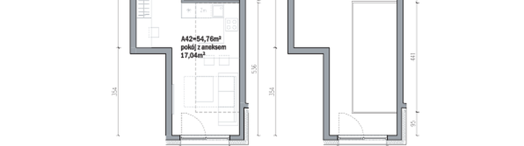
Nowe mieszkanie na sprzedaż 2 pokoje Wrocław Krzyki, 54,76 m2, 3 piętro - nr A42
Oferta sprzedaży od Develia
Wrocław, Krzyki, Przedmieście Oławskie, ul. gen. Romualda Traugutta 103 (1,3km od centrum Wrocławia)

Główne cechy mieszkania
Ważne informacje
Mieszkanie 2 pokojowe
Dodatkowe informacje
Udogodnienia

Rowerownia

Winda
Przyroda

Park
Inwestycja
Traugutta Vita
dolnośląskie, Wrocław, Krzyki, Przedmieście Oławskie
W budynku powstaną łącznie 83 kompaktowe lokale z aneksami kuchennymi. W tym 35 spośród nich o metrażach od 15 m kw. będzie przeznaczona na biura, a 48 to standardowe mieszkania oferujące od 25 m kw. powierzchni. Lokale położone na wyższych kondygnacjach zostaną wyposażone w balkony i tarasy na dachu, a te na parterze posiadać będą ogródki, stanowiące prywatną, zieloną przestrzeń do wypoczynku. Nowoczesny budynek uatrakcyjni zieleń stanowiąca około 30% terenu inwestycji. W budynku zaplanowano podziemny garaż, a dla posiadaczy rowerów przygotowane będą indywidualne boksy rowerowe. Budynek będzie dostosowany do potrzeb osób z niepełnosprawnościami. Znajdą się w nim dwie nowoczesne windy, do których dostęp nie będzie ograniczony żadną barierą architektoniczną. Teren zostanie w całości ogrodzony, a do garażu podziemnego poprowadzi bezpośredni wjazd bez szlabanu. Obiekt zostanie idealnie wkomponowany w otaczającą historyczną architekturę. Zachowane zostaną mury stanowiące częściowe ogrodzenie inwestycji, zrewitalizowane pod nadzorem konserwatora zabytków. Elewacja zostanie pokryta ozdobnym klinkierem, a wyjątkowego widoku dopełnią szklane balustrady. Zakończenie budowy inwestycji: II kwartał 2026r. Atuty: · Komfortowa, nowoczesna zabudowa · Doskonała komunikacja z pozostałymi częściami miasta · Rozbudowana infrastruktura lokalna · Bliskość centrum miasta · Dostęp do terenów zielonych wzdłuż nabrzeża Oławy · Balkony, tarasy na dachach oraz prywatne ogródki Niniejszy materiał nie stanowi oferty w rozumieniu Kodeksu cywilnego i ma charakter wyłącznie informacyjny. Szczegóły inwestycji oraz pełna oferta dostępne są na stronie internetowej: https://develia.pl/pl/
Dostępne mieszkania w tej inwestycji
| Nazwa | Rzut | Pokoje | Powierzchnia | Piętro | Cena | Status |