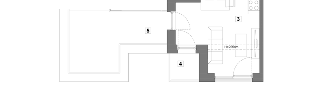
Nowe mieszkanie na sprzedaż 1 pokój Wrocław Fabryczna, 29,26 m2, 5 piętro - nr A1.5.46
Oferta sprzedaży od ATAL S.A.
Wrocław, Fabryczna, Gajowice, ul. Grochowa (2,6km od centrum Wrocławia)

Główne cechy mieszkania
Ważne informacje
Mieszkanie 1 pokojowe
Dodatkowe informacje
Udogodnienia

Usługi w budynku

Rowerownia

Inteligentny dom
Przyroda

Park
Inwestycja
ATAL Grabiszyn
dolnośląskie, Wrocław, Fabryczna, Gajowice
Miejsce, które opowie Ci nową historię ATAL Grabiszyn to kameralna inwestycja, która powstanie przy ul. Grochowej we Wrocławiu. To miejsce stworzone dla tych, którzy szukają czegoś więcej niż tylko adresu. Przestrzeni, która odpowie na potrzeby codzienności, ale i da szansę na chwilę zatrzymania się – przy porannej kawie, popołudniowym spacerze po parku czy wieczornym spotkaniu w jednej z pobliskich restauracji. Dobrze przemyślana codzienność W budynku zaprojektowano 53 mieszkania o powierzchniach od 28 do 73 mkw. Wnętrza stworzone z myślą o tym, by żyło się w nich po prostu dobrze – po Twojemu, na Twoich zasadach. Na parterze powstaną lokale usługowe, a dla wygody i bezpieczeństwa przyszłych mieszkańców przewidziano rowerownię i monitoring. ATAL Grabiszyn będzie miejscem, które ułatwi codzienność i da komfort bycia „u siebie” od pierwszego dnia. Prosto, pięknie, ponadczasowo Prosta forma budynku, eleganckie linie, naturalne światło i stonowana kolorystyka. Przeszklenia otworzą wnętrza na słońce, a balkony staną się przedłużeniem mieszkań – miejscem na poranny oddech, popołudniową kawę, kolację z widokiem na okolicę. Otoczenie zyska subtelną oprawę: nasadzenia, nastrojowe oświetlenie, elementy małej architektury. Wszystko po to, by od wejścia poczuć, że to dobre miejsce. Na start. Na nowe życie. Na codzienność we własnym rytmie.
Dostępne mieszkania w tej inwestycji
| Nazwa | Rzut | Pokoje | Powierzchnia | Piętro | Cena | Status |