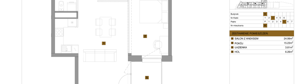
Nowe mieszkanie na sprzedaż 2 pokoje Wrocław Krzyki, 50,29 m2, 5 piętro - nr 82
Oferta sprzedaży od Dom Development S.A.
Wrocław, Krzyki, Południe, ul. Krakowska 98 (2,6km od centrum Wrocławia)

Główne cechy mieszkania
Ważne informacje
Mieszkanie 2 pokojowe
Dodatkowe informacje
Udogodnienia

Inteligentny dom

Rowerownia

Winda

Wózkarnia
Przyroda

Rzeka

Park
Inwestycja
Apartamenty nad Oławką etap II
dolnośląskie, Wrocław, Krzyki, Południe
Apartamenty nad Oławką to nowa inwestycja premium w ofercie Dom Development, zlokalizowana tuż nad malowniczą rzeką Oławą – w otoczeniu bulwarów, Parku na Niskich Łąkach i Lasu Rakowieckiego. Nowoczesna architektura, eleganckie wnętrza, wysoka jakość materiałów oraz doskonała lokalizacja sprawiają, że jest to wyjątkowe miejsce na mapie Wrocławia. Lokalizacja jest jednym z największych atutów inwestycji Apartamenty nad Oławką: • doskonale skomunikowana okolica – kilka przystanków tramwajowych i autobusowych w najbliższej okolicy • szybki dojazd do centrum (2,5km) • łatwy wyjazd z miasta dzięki bliskości Alei Wielkiej Wyspy • bezpośrednie sąsiedztwo bulwarów nad Oławą • bliska odległość Lasu Rakowieckiego i Parku na Niskich Łąkach • widok na rzekę Oławę • bogata oferta szkół i przedszkoli w najbliższym otoczeniu • liczne punkty usługowe i centrum handlowe Famili Point
Dostępne mieszkania w tej inwestycji
| Nazwa | Rzut | Pokoje | Powierzchnia | Piętro | Cena | Status |