Nowe mieszkanie na sprzedaż 2 pokoje Wrocław Fabryczna, 45,88 m2, 2 piętro - nr B1-K1-2-1
Oferta sprzedaży od ATAL S.A.
Wrocław, Fabryczna, Żerniki, ul. Maxa Berga (8,4km od centrum Wrocławia)

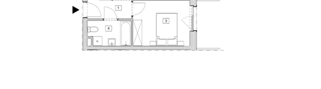
Główne cechy mieszkania
Ważne informacje
Mieszkanie 2 pokojowe
Inwestycja
Żerniki Na Novo
dolnośląskie, Wrocław, Fabryczna, Żerniki
Miejsce otwarte na relacje Żerniki Na Novo to osiedle w idealnej lokalizacji, która umożliwia swobodną komunikację z pobliskimi inwestycjami oraz ich terenami wewnętrznymi i punktami usługowymi. Jej atutami są zarówno zielona i spokojna okolica, jak i łatwy dojazd do pozostałych części miasta, kraju i Europy. To miejsce, które na nowo tworzy ważną i najbliższą dla nas przestrzeń. Z myślą o przyszłości Prężny rozwój tej części miasta sprawia, że w sąsiedztwie zaplanowano wiele nowych inwestycji. Przy pobliskiej ulicy Kosmonautów modernizowana jest droga ze ścieżkami rowerowymi. Usprawni to wyjazd zarówno w stronę Środy Śląskiej, jak i centrum miasta. W najbliższym czasie planowana jest również rozbudowa linii tramwajowej z zajezdnią oraz nowoczesne i wielofunkcyjne centrum sportowe. Wszystkie te projekty zdecydowanie podniosą atrakcyjność lokalizacji inwestycji oraz poprawią wygodę i komfort jej mieszkańców. W centrum sportowych emocji i nauki Osoby lubiące być na bieżąco z najważniejszymi imprezami w okolicy docenią bliskość stadionu Tarczyński Arena Wrocław. Poza specjalnymi wydarzeniami sportowymi, rozrywkowymi i targowymi, zimą można tu skorzystać z lodowiska. Okolica inwestycji Żerniki Na Novo to również centruym bogatej infrastruktury rekreacyjnej, między innymi z torem kartingowym czy pump truckiem. Najbliższe placówki edukacyjne znajdują się w niedalekiej odległości. Na osiedlu dostępne jest przedszkole, a szkoła podstawowa znajduje się w zasięgu kilkuminutowej podróży samochodem. Bliskość natury Poza świetną komunikacją warto zwrócić uwagę na najbliższe otoczenie osiedla. To wspaniała lokalizacja dla wielbicieli przyrody. Zaledwie kilka minut rowerem dzieli inwestycje od popularnego Kąpieliska Glinianki i ogródków działkowych, a kilkanaście - od Parku Pilczyckiego i Lasu Kuźnickiego. Te miejsca doskonale nadają się na popołudniowe spacery, weekendowe wycieczki czy poranny jogging. Projekt i wykończenie mieszkania zajmuje sporo czasu oraz pieniędzy. Korzystnym rozwiązaniem jest przekazanie tego zadania naszym Specjalistom. Ich zadaniem jest zaprojektowanie oraz wykończenie mieszkania w sposób nowoczesny i funkcjonalny.
Dostępne mieszkania w tej inwestycji
| Nazwa | Rzut | Pokoje | Powierzchnia | Piętro | Cena | Status |