Nowy dom na sprzedaż 5 pokoi Wrocław Fabryczna, 138,97 m2 - nr F2
Oferta sprzedaży od Vivarte Spółka Akcyjna
Wrocław, Fabryczna, Mokra, ul. Junacka 46a (13,6km od centrum Wrocławia)

Główne cechy domu
Ważne informacje
Dom i działka
Dodatkowe informacje
Przyroda

Las
Inwestycja
Viva Junacka
dolnośląskie, Wrocław, Fabryczna, Mokra
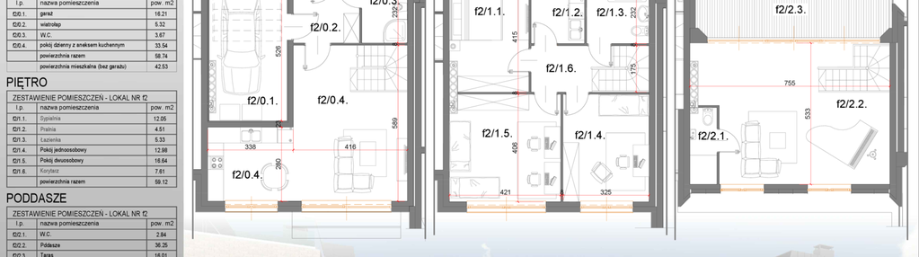
• 4 i 5pokojowe domy od 128 m2 do 140 m2 w cenie od 1 360 000 zł od dewelopera Vivarte • Domy z ogrodami i tarasami • Duże, panoramiczne okna • Ogrzewanie podłogowe i rekuperacja • Garaż oraz miejsce postojowe dla każdego domu • Las Mokrzański (3 minuty spacerem) • Przystanek autobusowy Dolnobrzeska (1 minuta spacerem) • Żabka, piekarnia (3 minuty pieszo) • Las Leśnicki, Park Leśnicki, Centrum kultury OPT Zamek (5 minut rowerem) Viva Junacka - poznaj inwestycję W obliczu dzisiejszego stylu życia, gdzie codzienne wyzwania kreują naszą rzeczywistość, pragniemy mieszkać w miejscu, w którym odnajdziemy spokój i harmonię. Czy można wyobrazić sobie zielone i kameralne osiedle w otoczeniu lasów, a jednocześnie w mieście? Wszystko to odnajdziecie na nowym osiedlu Viva Junacka! Viva Junacka to nowoczesne osiedle, które wyrasta w malowniczym otoczeniu Lasu Mokrzańskiego we Wrocławiu, a dodatkowo jest doskonale skomunikowane z centrum miasta. Na terenie osiedla powstaje 12 eleganckich domów w zabudowie bliźniaczej o powierzchni od 116 m2 do 141 m2. Każdy dom dysponuje własnym, przestronnym tarasem oraz ogródkiem, oferując prywatną przestrzeń do wypoczynku na świeżym powietrzu, w bezpośrednim kontakcie z naturą. Dla większego komfortu każdy dom dysponuje garażem oraz dodatkowym miejscem postojowym na zewnątrz. W Viva Junacka nowoczesność przeplata się z elegancją, tworząc unikalną wizję przestrzeni mieszkalnej. Każdy dom wyróżnia się innowacyjnym designem, który nie tylko jest estetyczny, ale również praktyczny i funkcjonalny. Standard wykończenia został zaprojektowany z największą dbałością o szczegóły, aby zapewnić mieszkańcom nie tylko komfort i bezpieczeństwo, ale także zdrowe i ekologiczne środowisko życia. Proponujemy przemyślane i nowoczesne rozwiązania, które również przyczynią się do zwiększenia korzyści ekonomicznych. Domy zostały starannie zaprojektowane, aby doskonale wpisywać się w rytm współczesnego stylu życia. Otwarta strefa dzienna na parterze stwarza doskonałe warunki do wspólnych spotkań i rodzinnych chwil. Piętro pierwsze to wyjątkowe miejsce, gdzie można znaleźć spokój i zrelaksować się po intensywnym dniu. Na piętrze drugim możesz zrealizować swoją własną wizję – możliwość aranżacji poddasza pozwala dostosować przestrzeń do Twoich indywidualnych potrzeb. Niewątpliwie dodatkowym atutem jest przestronny taras. • Nowoczesny system rekuperacji zapewnia świeże powietrze i optymalny komfort termiczny, jednocześnie minimalizując zużycie energii i wpływ na środowisko. • Ogrzewanie podłogowe zapewnia równomierny rozkład ciepła, co przekłada się na wyższy komfort użytkowania i efektywność energetyczną. • Duże, panoramiczne okna doświetlają wnętrza i tworzą płynne przejście między przestrzenią domową a naturalnym otoczeniem, pozwalając cieszyć się widokiem na ogród i otaczającą zieleń. Zamieszkaj przy Lesie Mokrzańskim! Inwestycja znajduje się przy ulicy Junackiej 46a, w malowniczej dzielnicy Leśnica, gwarantując jednocześnie harmonię z otaczającą przyrodą, a zarazem bliskość do kluczowych punktów miasta. Osiedle położone jest w bezpośrednim sąsiedztwie Lasu Mokrzańskiego, co gwarantuje idealne warunki do porannych joggingów, spacerów z rodziną czy ucieczki od wielkomiejskiego zgiełku i zanurzenia się w zielnym otoczeniu pośród śpiewu ptaków. Leśnica to dzielnica wyróżniająca się cichymi uliczkami i malowniczym krajobrazem, z przeważającą ilością domów jednorodzinnych. To idealne miejsce dla osób, które cenią sobie spokój i lubią żyć w harmonii z przyrodą, jednocześnie nie rezygnując z szybkiego dostępu do miejskiej infrastruktury oraz różnorodnych atrakcji. Viva Junacka - lokalizacja • 13,5 km do centrum • 1 min. spacerem do przystanku autobusowego • 5 min. samochodem do przystanku tramwajowego • dojazd do centrum: 31 min samochodem Istotne punkty w okolicy inwestycji • Przystanek autobusowy (71 m, 1 minuta spacerem)
Dostępne domy w tej inwestycji
| Nazwa | Rzut | Pokoje | Powierzchnia | Piętra | Cena | Status |