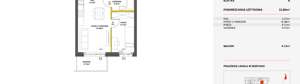
Nowe mieszkanie na sprzedaż 2 pokoje Warszawa Praga-Południe, 32,89 m2, 4 piętro - nr 18
Oferta sprzedaży od Victoria Dom S.A.
Warszawa, Praga-Południe, Grochów, ul. Chodakowska 36 (4,5km od centrum Warszawy)

Główne cechy mieszkania
Ważne informacje
Mieszkanie 2 pokojowe
Dodatkowe informacje
Udogodnienia

Winda

Wózkarnia

Plac zabaw

Usługi w budynku

Patio / Dziedziniec
Przyroda

Park

Rzeka
Inwestycja
Metro Art 7
mazowieckie, Warszawa, Praga-Południe, Grochów
Nowoczesne osiedle w sercu Pragi. Kolejny 7 etap osiedla Metro Art to jeden budynek o dynamicznej, nowoczesnej architekturze z usługami na parterze oraz łącznie 109 lokalami mieszkalnymi. Mieszkania z dużymi przeszkleniami mają szeroki zakres metraży od 32 – 116 m2, idealne dla singla, pary czy rodziny z dziećmi. Garaż podziemny, komórki lokatorskie i stojaki na rowery zapewniają wygodę na co dzień. Wybór mieszkań na tym etapie oferuje mieszkania z ogródkami lub balkonami.
Dostępne mieszkania w tej inwestycji
| Nazwa | Rzut | Pokoje | Powierzchnia | Piętro | Cena | Status |