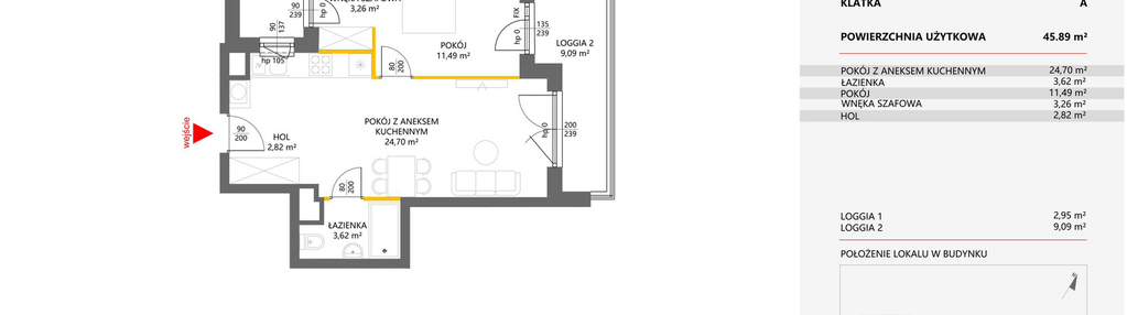
Nowe mieszkanie na sprzedaż 2 pokoje Warszawa Białołęka, 45,89 m2, 3 piętro - nr 14
Oferta sprzedaży od Victoria Dom S.A.
Warszawa, Białołęka, Żerań, ul. Marywilska 7 (7,5km od centrum Warszawy)

Główne cechy mieszkania
Ważne informacje
Mieszkanie 2 pokojowe
Dodatkowe informacje
Udogodnienia

Rowerownia

Plac zabaw

Wózkarnia

Patio / Dziedziniec

Winda

Usługi w budynku
Przyroda

Rzeka

Las

Park
Inwestycja
Miasteczko Nova Sfera 4
mazowieckie, Warszawa, Białołęka, Żerań
Miasteczko Nova Sfera prezentuje ostatni już etap inwestycji – etap 4 : 5-kondygnacyjny blok z szerokim wyborem funkcjonalnych układów i metraży. Jasne, słoneczne mieszkania będą idealne dla aktywnych singli, par czy rodzin z dziećmi. Codzienny komfort życia mieszkańców podniosą nowoczesne loggie, garaże podziemne, komórki lokatorskie i ogólnodostępne miejsca postojowe na terenie osiedla. Na osiedlu znajdziemy liczne lokale usługowe, place zabaw i tereny zielone do spacerowania i relaksu. Inwestycję wyróżnia świetna lokalizacja – bliskość przystanku autobusowego i połażenie tuż przy stacji PKP, zaledwie 8 min. od metra zapewnia szybki i wygodny dojazd do centrum Warszawy.
Dostępne mieszkania w tej inwestycji
| Nazwa | Rzut | Pokoje | Powierzchnia | Piętro | Cena | Status |