Nowe mieszkanie na sprzedaż 2 pokoje Warszawa Praga-Południe, 41,68 m2, parter - nr 006/8
Oferta sprzedaży od Develia
Warszawa, Praga-Południe, Grochów, ul. Podskarbińska 32/34 (5,1km od centrum Warszawy)

Główne cechy mieszkania
Ważne informacje
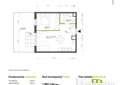
Mieszkanie 2 pokojowe
Dodatkowe informacje
Udogodnienia

Pomieszczenie rekreacyjne

Winda

Patio / Dziedziniec

Plac zabaw

Rowerownia

Usługi w budynku
Przyroda

Park
Inwestycja
Aleje Praskie
mazowieckie, Warszawa, Praga-Południe, Grochów
Aleje Praskie to nowoczesna inwestycja w sercu Pragi Południe, w jednej z najszybciej rozwijających się części Warszawy, zaledwie 500 m od przyszłej stacji metra Mińska. Projekt realizowany jest w kilku etapach i wyróżnia się przemyślanym zagospodarowaniem terenu, łącząc komfort mieszkańców z funkcjonalną przestrzenią wspólną. Oferta została zaprojektowana tak, aby każdy mógł znaleźć układ i metraż idealnie dopasowany do swoich potrzeb. Każde mieszkanie posiada dodatkową otwartą przestrzeń w postaci balkonu, tarasu lub ogródka. Projekt realizowany jest z zastosowaniem najnowszych technologii i w trosce o ochronę środowiska. Potwierdzeniem tego jest certyfikowanie budynków międzynarodowym systemem BREEAM. Centralnym punktem osiedla będzie przestronny, wewnętrzny dziedziniec, gdzie ruch kołowy zostanie ograniczony do minimum. Na terenie inwestycji powstaną także alejki spacerowe, tężnia solankowa, siłownia plenerowa oraz plac zabaw dla najmłodszych mieszkańców. W ofercie przewidziane są również lokale usługowe. Lokalizacja Aleje Praskie są usytuowane w obrębie osiedla Kamionek – części Pragi, która zyskuje na popularności i wyróżnia się ciekawą architekturą oraz sztuką uliczną. Liczne tereny zielone stwarzają doskonałe warunki do aktywnego wypoczynku na świeżym powietrzu, ale również do odpoczynku i wyciszenia w wielkim mieście. W pobliżu znajdziemy m.in.: Park Obwodu Praga Armii Krajowej, Park Polińskiego, Park Skaryszewski czy teren wokół Jeziora Kamionkowskiego. Kamionek jest również bardzo dobrze skomunikowany. Bliskość ważnych węzłów komunikacyjnych – ul. Grochowskiej, ul. Targowej, Al. Waszyngtona i Al. Stanów Zjednoczonych pozwala na szybki dojazd w inne rejony miasta, a dotarcie samochodem do centrum zajmuje kilkanaście minut. Atuty inwestycji: - Funkcjonalne układy mieszkań - Tężnia solankowa, aleje spacerowe na terenie osiedla - Inwestycja atrakcyjna pod kątem wynajmu - W pobliżu jest planowana stacja metra – Mińska - Dobra komunikacja z innymi dzielnicami Warszawy - Niska zabudowa i spokojny charakter inwestycji - Parki i tereny rekreacyjne w okolicy Daty zakończenia poszczególnych etapów inwestycji: Etap 3 - III kwartał 2025 (zakończony) Etap 5 - II kwartał 2025 (zakończony) Etap 7 - III kwartał 2027 Etap 8 - III kwartał 2026 Etap 9 - III kwartał 2026 Etap 10 - III kwartał 2027 Niniejszy materiał nie stanowi oferty w rozumieniu Kodeksu cywilnego i ma charakter wyłącznie informacyjny. Szczegóły inwestycji oraz pełna oferta dostępne są na stronie internetowej: https://develia.pl/pl/
Dostępne mieszkania w tej inwestycji
| Nazwa | Rzut | Pokoje | Powierzchnia | Piętro | Cena | Status |