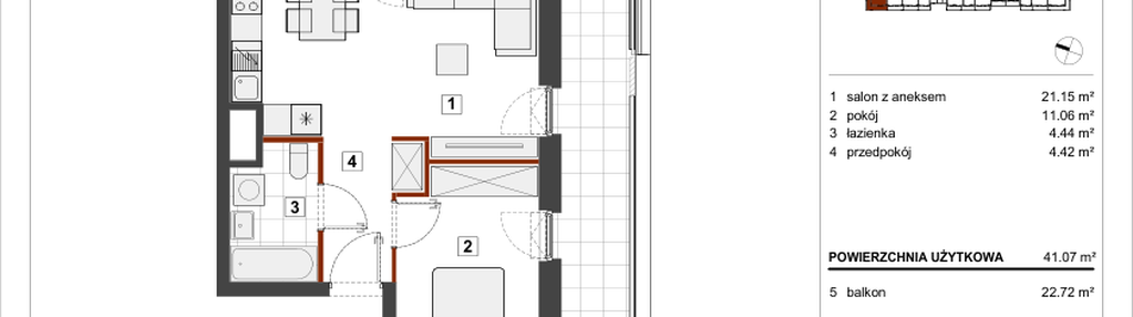
Nowe mieszkanie na sprzedaż 2 pokoje Warszawa Targówek, 41,07 m2, 6 piętro - nr A-A084
Oferta sprzedaży od Home Invest Sp. z o.o.
Warszawa, Bródno, ul. Warszawski Świt (6,6km od centrum Warszawy)

Główne cechy mieszkania
Ważne informacje
Mieszkanie 2 pokojowe
Dodatkowe informacje
Udogodnienia

Usługi w budynku

Własny akwen wodny

Winda

Rowerownia
Inwestycja
Warszawski Świt etap VII
mazowieckie, Warszawa, Targówek, Bródno
Warszawski Świt to nowy punkt na mapie Targówka, na który z drugiego brzegu Wisły spogląda warszawska Syrenka. Niech nie zwiedzie Cię jednak ta odległość. Dzięki doskonale rozwiniętej komunikacji w niecały kwadrans dojedziesz do samego centrum, a liczne okoliczne sklepy i punkty usługowe ułatwią Twoją codzienność. Warszawski Świt to idealna alternatywa dla drogich mieszkań w centrum – budź się codziennie we własnym M na Targówku!
Dostępne mieszkania w tej inwestycji
| Nazwa | Rzut | Pokoje | Powierzchnia | Piętro | Cena | Status |