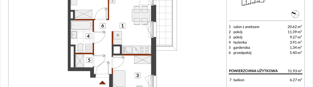
Nowe mieszkanie na sprzedaż 3 pokoje Warszawa Targówek, 51,93 m2, 4 piętro - nr WS-L-B100
Oferta sprzedaży od Home Invest Sp. z o.o.
Warszawa, Bródno, ul. Warszawski Świt (6,4km od centrum Warszawy)

Główne cechy mieszkania
Ważne informacje
Mieszkanie 3 pokojowe
Dodatkowe informacje
Udogodnienia

Wózkarnia

Własny akwen wodny

Winda

Rowerownia
Inwestycja
Warszawski Świt etap XII
mazowieckie, Warszawa, Targówek, Bródno
Warszawski Świt to nowy punkt na mapie Targówka, na który z drugiego brzegu Wisły spogląda warszawska Syrenka. Niech nie zwiedzie Cię jednak ta odległość. Dzięki doskonale rozwiniętej komunikacji w niecały kwadrans dojedziesz do samego centrum, a liczne okoliczne sklepy i punkty usługowe ułatwią Twoją codzienność. Warszawski Świt to idealna alternatywa dla drogich mieszkań w centrum – budź się codziennie we własnym M na Targówku!
Dostępne mieszkania w tej inwestycji
| Nazwa | Rzut | Pokoje | Powierzchnia | Piętro | Cena | Status |