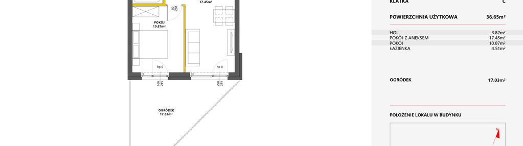
Nowe mieszkanie na sprzedaż 2 pokoje Warszawa Praga-Południe, 36,67 m2, parter - nr 92
Oferta sprzedaży od Victoria Dom S.A.
Warszawa, Praga-Południe, Grochów, ul. Żupnicza (4,6km od centrum Warszawy)

Główne cechy mieszkania
Ważne informacje
Mieszkanie 2 pokojowe
Dodatkowe informacje
Udogodnienia

Winda

Wózkarnia
Przyroda

Rzeka

Park
Inwestycja
Metro Art 13
mazowieckie, Warszawa, Praga-Południe, Grochów
Metro Art 13 to nowoczesne osiedle cenione przez Klientów Victoria Dom na warszawskiej Pradze. Jednym z kluczowych elementów, który zasługuje na uwagę jest doskonała lokalizacja, zapewniająca mieszkańcom łatwy dostęp do wielu udogodnień. Przekłada się to na wygodę i komfort codziennego życia. Sąsiedztwo industrialnej część Warszawy, kultowe praskie kamienice pozwolą poczuć niezwykły klimat i urok dzielnicy a zarazem wielkomiejski styl życia. W Metro Art. 13 oferujemy łącznie 129 lokali mieszkalnych. Mieszkania o metrażach 26-63 m2, w funkcjonalnych układach od 2 do 3 pokoi, do wyboru z balkonem lub ogródkiem.
Dostępne mieszkania w tej inwestycji
| Nazwa | Rzut | Pokoje | Powierzchnia | Piętro | Cena | Status |