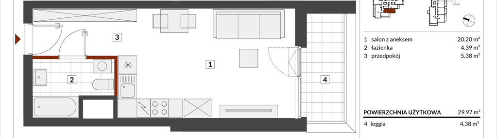
Nowe mieszkanie na sprzedaż 1 pokój Warszawa Targówek, 29,97 m2, 3 piętro - nr B2-A024
Oferta sprzedaży od Home Invest Sp. z o.o.
Warszawa, Bródno, ul. Warszawski Świt 12D (6,5km od centrum Warszawy)


Główne cechy mieszkania
Ważne informacje
Mieszkanie 1 pokojowe
Dodatkowe informacje
Udogodnienia

Wózkarnia

Rowerownia

Winda

Własny akwen wodny
Inwestycja

Warszawski Świt etap IX
mazowieckie, Warszawa, Targówek, Bródno
Warszawski Świt to nowy punkt na mapie Targówka, na który z drugiego brzegu Wisły spogląda warszawska Syrenka. Niech nie zwiedzie Cię jednak ta odległość. Dzięki doskonale rozwiniętej komunikacji w niecały kwadrans dojedziesz do samego centrum, a liczne okoliczne sklepy i punkty usługowe ułatwią Twoją codzienność. Warszawski Świt to idealna alternatywa dla drogich mieszkań w centrum – budź się codziennie we własnym M na Targówku!
Dostępne mieszkania w tej inwestycji
Nazwa | Rzut | Pokoje | Powierzchnia | Piętro | Cena | Status |