Mieszkania na sprzedaż Bydgoszcz, Bocianowo-Śródmieście-Stare Miasto - strona 3
- 515 ogłoszeń
- Chcesz zobaczyć lepiej dopasowane oferty?Wybierz liczbę pokoi
- 1
 - 2
 - 3
 - 4
 - 5+
 
 - Piękny apartament na rynku, działający wynajemStefana Batorego, Bocianowo-Śródmieście-Stare Miasto, Bydgoszcz5 pokoi 132,83 m21 330 000 zł10 012 zł/m2Na sprzedaż wyjątkowa nieruchomość o łącznej powierzchni 133 m², podzielona obecnie na trzy niezależne apartamenty, idealne pod wynajem krótkoterminowy (Booking, Airbnb). 📍 LokalizacjaSamo centrum Bydgoszczy – Stary Rynek!Z okien apartamentów
 - Eleganckie, przytulne m2 - os. industria!Bocianowo-Śródmieście-Stare Miasto, Bydgoszcz2 pokoje 35,97 m2539 000 zł14 984 zł/m2StartFragment OPIS OFERTY: Oferujemy na sprzedaż wyjątkowe, nowoczesne mieszkanie w apartamentowcu zlokalizowanym w samym sercu miasta - osiedle Industria. Lokal o powierzchni 37 m², położony jest na 3 piętrze. To doskonała propozycja
 
- 2-pokojowe mieszkanie 56m² przy parku -śródmieścieks. Ryszarda Markwarta, Bocianowo-Śródmieście-Stare Miasto, Bydgoszcz2 pokoje 56 m2389 000 zł6 946 zł/m2Na sprzedaż oferuję przestronne 2-pokojowe mieszkanie o powierzchni 56 m², położone w jednej z najbardziej prestiżowych lokalizacji w Bydgoszczy.To wyjątkowe miejsce łączy klimat historycznego Śródmieścia z dostępem do zieleni, usług i pełnej
 - Bydgoszcz dworcowa 2 pokoje doskonały apartamentDworcowa, Bocianowo-Śródmieście-Stare Miasto, Bydgoszcz2 pokoje 52,72 m2549 000 zł10 413 zł/m2Poszukujesz mieszkania w idealnej lokalizacji? Na "Start", lub inwestycyjnie?Mieszkanie wykończone z dbałością o każdy szczegół!Jeśli TAK, to mieszkanie jest właśnie dla Ciebie!Zadzwoń Zapraszam również na bezpłatne konsultacje kredytowe.RZUT NA
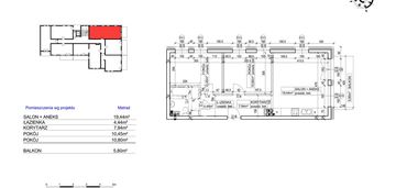
 - Cieszkowskiego, apartament z klimatemAugusta Cieszkowskiego, Bocianowo-Śródmieście-Stare Miasto, Bydgoszcz4 pokoje 132,16 m21 189 000 zł8 996 zł/m2Mieszkanie z duszą i loggią. Cieszkowskiego! 132 m² klasy, stylu i wygody Szukasz mieszkania z charakterem, ale bez potrzeby generalnych remontów czy walki z ekipami budowlanymi? Ta secesyjna perła wśród kamienic przy ulicy Cieszkowskiego oferuje
 - Dwa pokoje po kapitalnym remoncie w mega lokalizacHenryka Sienkiewicza, Bocianowo-Śródmieście-Stare Miasto, Bydgoszcz2 pokoje 25,22 m2235 000 zł9 318 zł/m2Szanowni Państwo, Z przyjemnością prezentujemy Państwu ofertę sprzedaży nieruchomości w Bydgoszczy przy ul. Sienkiewicza To idealna okazja dla osób, które szukają wyjątkowego miejsca do życia oraz świetnej opcji inwestycyjnej Opis mieszkania:
 - Mieszkanie 3 pokojowe w samym sercu bydgoszczyBocianowo-Śródmieście-Stare Miasto, Bydgoszcz3 pokoje 57,72 m2586 060 zł10 153 zł/m2RABAT  20.000 ZŁSzukasz nowego 3 pokojowego mieszkania  w samym centrum Bydgoszczy zaledwie kilkanaście minut pieszo od Starego Rynku?Interesują Cię mieszkania na rynku pierwotnym, bo lubisz zrobić wszystko "po swojemu"?W takim razie to
 - Apartament 63m2 z tarasem 60m2, winda, hala, 1p.Wileńska, Bocianowo-Śródmieście-Stare Miasto, Bydgoszcz3 pokoje 62,59 m2749 000 zł11 966 zł/m2Szukasz mieszkania w super lokalizacji?Chciałbyś mieszkanie z dużym tarasem?Cenisz sobie przestrzeń i nowoczesność?Poszukujesz nieruchomości z windą z poziomu zero?Chciałbyś  miejsce parkingowe ?Jeśli Twoja odpowiedz
 - Symofinia - prestiż i stylBocianowo-Śródmieście-Stare Miasto, Bydgoszcz1 pokój 27,20 m2489 000 zł17 977 zł/m2MIESZKANIE "POD KLUCZ" Prestiżowa lokalizacja w sercu Dzielnicy Muzycznej! Symfonia to połączenie elegancji, wygody i nowoczesności. Propozycja dla aktywnych ludzi, którzy lubią mieć w pobliżu wszystkie atrakcje, które
 - 3 pokoje na parterze kamienicy z pięknym patioBocianowo, Bocianowo-Śródmieście-Stare Miasto, Bydgoszcz3 pokoje 65,01 m2360 000 zł5 537 zł/m2Oferta tylko w Naszym biurze! Na sprzedaż oferujemy mieszkanie do odświeżenia, o powierzchni 65,01 m2, położone na parterze kamienicy przy ul. Bocianowo. Mieszkanie składa się z 3 sypialni, kuchni, łazienki, WC oraz przedpokoju.
 - Śniadeckich, nowa kamienica 2005r, kawalerkaBocianowo-Śródmieście-Stare Miasto, Bydgoszcz1 pokój 37,67 m2377 000 zł10 007 zł/m2Funkcjonalna kawalerka prawie 38m2, z potencjałem na dwa pokoje. Mieszkanie mieści się w nowej kamienicy z 2005 roku, na 2 piętrze, przy ul. Śniadeckich. Idealne dla pary oraz pod inwestycję - kup mieszkanie zanim inflacja "zje" Twoje oszczędności!
 - Mieszkanie w kamienicy z windą, top lokalizacja,Wolności, Bocianowo-Śródmieście-Stare Miasto, Bydgoszcz3 pokoje 128,10 m2704 550 zł5 500 zł/m2Kochasz kamienice i życie w centrum miasta?Chcesz prowadzić biuro, kancelarię lub inną działalność w prestiżowej kamienicy?Szukasz dużej przestrzeni do własnej aranżacji?Szukasz nieruchomości z windą?Jeśli na jedno z pytań odpowiadasz TAK - to
 - Mieszkanie , centrumGimnazjalna, Bocianowo-Śródmieście-Stare Miasto, Bydgoszcz2 pokoje 35,38 m2299 900 zł8 476 zł/m2WYJĄTKOWE MIESZKANIE W SERCU BYDGOSZCZY PRESTIŻOWA LOKALIZACJA W ZABYTKOWEJ KAMIENICY CENTRUM MIASTA - POPULARNA ULICA To nie tylko mieszkanie - to styl życia w najlepszej lokalizacji Bydgoszczy!CHARAKTERYSTYKA NIERUCHOMOŚCI Odrestaurowana zabytkowa
 - Starówka, 3 pokoje, idealne pod wynajem, ul. długaDługa, Bocianowo-Śródmieście-Stare Miasto, Bydgoszcz3 pokoje 84,07 m2439 900 zł5 232 zł/m2Szukasz mieszkania w samym sercu Bydgoszczy? Marzysz o klimatycznej kamienicy z duszą i ogromnym potencjałem? A może szukasz nieruchomości idealnej pod wynajem w prestiżowej lokalizacji?Zobacz to mieszkanie przy ul. Długiej 2 – dosłownie kilka kroków
 - Za gotówkę - udział, dwupoziomowe mazowiecka 42mBocianowo-Śródmieście-Stare Miasto, Bydgoszcz2 pokoje 27,23 m2230 000 zł8 446 zł/m2Oferta TYLKO w Jagła Nieruchomości ZAKUP TYLKO ZA GOTÓWKĘ - udział z niezakłóconym, wyłącznym prawem do korzystania z lokalu w trakcie wyodrębnienia samodzielnego lokalu DWUPOZIOMOWE MIESZKANIE W SERCU BYDGOSZCZY -
 - Symofinia - prestiż i stylBocianowo-Śródmieście-Stare Miasto, Bydgoszcz1 pokój 25,09 m2348 751 zł13 900 zł/m2Prestiżowa lokalizacja w sercu Dzielnicy Muzycznej! Symfonia to połączenie elegancji, wygody i nowoczesności. Propozycja dla aktywnych ludzi, którzy lubią mieć w pobliżu wszystkie atrakcje, które oferuje centrum miasta. Osiedle
 - Kawalerka 31.26 m2 3 piętro na sprzedażGdańska, Bocianowo-Śródmieście-Stare Miasto, Bydgoszcz1 pokój 31,26 m2139 900 zł4 475 zł/m2Oferta sprzedaży mieszkania na poddaszu w kamienicy – idealne do remontu!Podstawowe informacje:Powierzchnia mieszkania: 31, 26 m2 m²PoddaszeStan mieszkania: Do kapitalnego remontu – możliwość aranżacji według własnych potrzeb!Kamienica po
 - Symofinia - prestiż i stylBocianowo-Śródmieście-Stare Miasto, Bydgoszcz1 pokój 27,08 m2365 580 zł13 500 zł/m2Prestiżowa lokalizacja w sercu Dzielnicy Muzycznej! Symfonia to połączenie elegancji, wygody i nowoczesności. Propozycja dla aktywnych ludzi, którzy lubią mieć w pobliżu wszystkie atrakcje, które oferuje centrum miasta. Osiedle
 - Symofinia - prestiż i stylBocianowo-Śródmieście-Stare Miasto, Bydgoszcz1 pokój 26,84 m2370 392 zł13 800 zł/m2Prestiżowa lokalizacja w sercu Dzielnicy Muzycznej! Symfonia to połączenie elegancji, wygody i nowoczesności. Propozycja dla aktywnych ludzi, którzy lubią mieć w pobliżu wszystkie atrakcje, które oferuje centrum miasta. Osiedle
 - Apartament na starym porcieBocianowo-Śródmieście-Stare Miasto, Bydgoszcz3 pokoje 101 m21 700 000 zł16 831 zł/m2OPIS OFERTY: Apartament na Starym Mieście z widokiem na rzekę. Mieszkanie mieści się na ulicy Stary Port, a u jego stóp ciągnie się bulwar będący częścią Bydgoskiego Węzła Wodnego. Z okien apartamentu widać barki, Teatr Kameralny, pałacyk
 - Symofinia - prestiż i stylBocianowo-Śródmieście-Stare Miasto, Bydgoszcz1 pokój 29,73 m2398 382 zł13 400 zł/m2Prestiżowa lokalizacja w sercu Dzielnicy Muzycznej! Symfonia to połączenie elegancji, wygody i nowoczesności. Propozycja dla aktywnych ludzi, którzy lubią mieć w pobliżu wszystkie atrakcje, które oferuje centrum miasta. Osiedle
 - Symofinia - prestiż i stylBocianowo-Śródmieście-Stare Miasto, Bydgoszcz1 pokój 25,39 m2352 921 zł13 900 zł/m2Prestiżowa lokalizacja w sercu Dzielnicy Muzycznej! Symfonia to połączenie elegancji, wygody i nowoczesności. Propozycja dla aktywnych ludzi, którzy lubią mieć w pobliżu wszystkie atrakcje, które oferuje centrum miasta. Osiedle
 - Dwustronne mieszkanie na śródmieściuDworcowa, Bocianowo-Śródmieście-Stare Miasto, Bydgoszcz3 pokoje 54,08 m2505 734 zł9 300 zł/m2Dwustronne, trzypokojowe mieszkanie o powierzchni ponad 54m², Z BALKONEM zlokalizowane w ścisłym centrum Bydgoszczy. Mieszkanie z ekspozycją północny zachód - wschódUkład pomieszczeń:Salon z aneksem kuchennym i wyjściem na balkonDwie
 - Przestronne mieszkanie 43m² w kamienicy, bydgoszczMazowiecka, Bocianowo-Śródmieście-Stare Miasto, Bydgoszcz2 pokoje 42,95 m2289 000 zł6 728 zł/m2Szanowni Państwo,Na sprzedaż przestronne i funkcjonalne mieszkanie o powierzchni 42,95 m², położone w kamienicy przy ulicy Mazowieckiej w Bydgoszczy. Mieszkanie wyróżnia się wyjątkową lokalizacją i szeregiem udogodnień, które spełnią oczekiwania
 - Symofinia - prestiż i stylBocianowo-Śródmieście-Stare Miasto, Bydgoszcz3 pokoje 60,12 m2727 452 zł12 100 zł/m2Prestiżowa lokalizacja w sercu Dzielnicy Muzycznej! Symfonia to połączenie elegancji, wygody i nowoczesności. Propozycja dla aktywnych ludzi, którzy lubią mieć w pobliżu wszystkie atrakcje, które oferuje centrum miasta. Osiedle
 - Dwupak inwestycyjny. kawalerki. śródmieście.Mazowiecka, Bocianowo-Śródmieście-Stare Miasto, Bydgoszcz2 pokoje 48,13 m2385 000 zł7 999 zł/m2Szanowni Państwo, Z przyjemnością prezentujemy Państwu ofertę sprzedaży dwóch kawalerek na jednej księdze wieczystej. To idealna okazja dla osób, które szukają świetnej opcji inwestycyjnej. Opis nieruchomości:Dwie kawalarki/23,75m2 i 20,24m2/
 - Symofinia - prestiż i stylBocianowo-Śródmieście-Stare Miasto, Bydgoszcz1 pokój 26,95 m2366 520 zł13 600 zł/m2Prestiżowa lokalizacja w sercu Dzielnicy Muzycznej! Symfonia to połączenie elegancji, wygody i nowoczesności. Propozycja dla aktywnych ludzi, którzy lubią mieć w pobliżu wszystkie atrakcje, które oferuje centrum miasta. Osiedle
 - Mieszkanie w topowej lokalizacji pod inwestycję.Bocianowo-Śródmieście-Stare Miasto, Bydgoszcz4 pokoje 110,07 m2570 000 zł5 178 zł/m2Biuro Jagła Nieruchomości zaprasza do zapoznania się z ofertą. Duże mieszkanie o powierzchni 110 m2. przy ulicy Gdańskiej obok skrzyżowania z ulicą Dworcową. Ścisłe centrum miasta, topowa lokalizacja. Lokal mieści się na 2 piętrze odnowionej
 - Symofinia - prestiż i stylBocianowo-Śródmieście-Stare Miasto, Bydgoszcz2 pokoje 40,32 m2524 160 zł13 000 zł/m2Prestiżowa lokalizacja w sercu Dzielnicy Muzycznej! Symfonia to połączenie elegancji, wygody i nowoczesności. Propozycja dla aktywnych ludzi, którzy lubią mieć w pobliżu wszystkie atrakcje, które oferuje centrum miasta. Osiedle
 - Nowy port, kawalerka 30m2 do własnej aranżacjiBocianowo-Śródmieście-Stare Miasto, Bydgoszcz1 pokój 30 m2501 000 zł16 700 zł/m2Szanowni Państwo, Z przyjemnością prezentuje wyjątkową ofertę w prestiżowej inwestycji Nowy Port! Opis mieszkania: Powierzchnia: 30m2 Liczba pokoi: 1 Kuchnia: Aneks Łazienka: z wcOpis budynku: Rodzaj budynku: Apartamentowiec Liczba pięter: 5 Rok
 - Kawalerka w centrum miastaGdańska, Bocianowo-Śródmieście-Stare Miasto, Bydgoszcz1 pokój 39 m2299 000 zł7 666 zł/m2Szanowni Państwo, Na sprzedaż stylowe mieszkanie w świetnej lokalizacji - ul. Gdańska, Bydgoszcz Oferujemy na sprzedaż wyjątkowe mieszkanie położone w odnowionej kamienicy przy ul. Gdańskiej, naprzeciwko urokliwej Dzielnicy Muzycznej. Mieszkanie
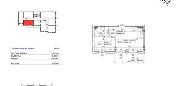
 - Apartament, 71m2, 2005r, śródmieścieJana i Jędrzeja Śniadeckich, Bocianowo-Śródmieście-Stare Miasto, Bydgoszcz2 pokoje 70,99 m2625 000 zł8 804 zł/m2Funkcjonalny apartament 71m2, dwa pokoje z potencjałem na trzy pokoje. Mieszkanie mieści się w nowej kamienicy z 2005 roku, na 3 piętrze, przy ul. Śniadeckich. Idealne dla pary oraz pod inwestycję - kup mieszkanie zanim inflacja "zje" Twoje
 - Sztos w centrum miastaśw. Floriana, Bocianowo-Śródmieście-Stare Miasto, Bydgoszcz1 pokój 25,50 m2235 000 zł9 215 zł/m2Jeśli to czytasz to masz dwa wyjścia!!!! 1. Wykręć 607 – 801 - 856 i umów się na prezentacje bo już po fotkach wiesz jaki to sztos 2. Przeczytaj poniższy opis i zobacz wirtualny spacer, a następnie wróć do punktu 1 O co chodzi: top pod
 - Śródmieście - 2 pokoje z parkingiemBocianowo-Śródmieście-Stare Miasto, Bydgoszcz2 pokoje 64 m2390 000 zł6 093 zł/m2Przestrzeń i historia w sercu Bydgoszczy - mieszkanie przy Placu Wolności! Poznaj wyjątkowe miejsce, w którym możesz cieszyć się spokojem i prywatnością, a jednocześnie mieć wszystko na wyciągnięcie ręki - ulubioną kawiarnię, park czy
 - Symofinia - prestiż i stylBocianowo-Śródmieście-Stare Miasto, Bydgoszcz3 pokoje 60,32 m2741 936 zł12 300 zł/m2Prestiżowa lokalizacja w sercu Dzielnicy Muzycznej! Symfonia to połączenie elegancji, wygody i nowoczesności. Propozycja dla aktywnych ludzi, którzy lubią mieć w pobliżu wszystkie atrakcje, które oferuje centrum miasta. Osiedle
 
Polecane lokalizacje
- Mieszkania na sprzedaż Bartodzieje (443)
 - Mieszkania na sprzedaż Leśne (302)
 - Mieszkania na sprzedaż Nowy Fordon (271)
 - Mieszkania na sprzedaż Stary Fordon (180)
 - Mieszkania na sprzedaż Wzgórze Wolności (143)
 - Mieszkania na sprzedaż Kapuściska (116)
 - Mieszkania na sprzedaż Okole (113)
 - Mieszkania na sprzedaż Szwederowo (91)
 - Mieszkania na sprzedaż Wyżyny (58)
 - Mieszkania na sprzedaż Czyżkówko (54)
 - Mieszkania na sprzedaż Górzyskowo (50)
 - Mieszkania na sprzedaż Flisy (39)
 - Mieszkania na sprzedaż Bielawy (31)
 - Mieszkania na sprzedaż Osowa Góra (25)
 - Mieszkania na sprzedaż Brdyujście (18)
 - Mieszkania na sprzedaż Błonie (17)
 - Mieszkania na sprzedaż Wilczak-Jary (12)
 - Mieszkania na sprzedaż Tatrzańskie (8)
 - Mieszkania na sprzedaż Miedzyń-Prądy (3)
 - Mieszkania na sprzedaż Terenów Nadwiślańskich (3)
 - Mieszkania na sprzedaż Bydgoszcz Wschód-Siernieczek (2)
 - Mieszkania na sprzedaż Glinki-Rupienica (2)
 - Mieszkania na sprzedaż Jachcice (2)
 - Mieszkania na sprzedaż Łęgnowo (1)